プレミールコート 末広

賃貸物件に関するお問い合わせ 072-885-5486


プレミールコート 末広

プレミールコート末広 大阪門真市末広町
京阪本線や大阪モノレールなど交通機関のアクセスもよく、周辺にはスーパー・コンビニ、飲食店なども充実。古川橋駅から徒歩4分。

物件名 プレミールコート 末広 構造 鉄筋コンクリート造 地上4階建
所在地 大阪府門真市末広町35-6 築年月 1993年3月
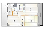
総戸数 12戸(住宅)・店舗 専有面積 50.16㎡~50.80㎡
駐車場 有り (15000円)
オートバイ相談
最寄駅 京阪本線「古川橋」徒歩 4分
京阪本線 「門真市」徒歩 10分
大阪モノレール「門真市」駅 徒歩10分
間取り

プレミールコート 青葉丘 賃貸物件一覧

間取り 家賃/共益費 保証金/敷引 階/階建 専有面積  
3DK Atype 6.4万円(6,000円) 15万円/15万円 4/4階
402
50.80㎡

詳細へ

現在の空き予定なしです。

※2025年4月13日更新。 空室状況が異なる場合がございます。詳しくはお問い合せ下さい。

物件画像


ページ上部へ

アクセスマップ

大きな地図で見る

ページ上部へ


ページ上部へ