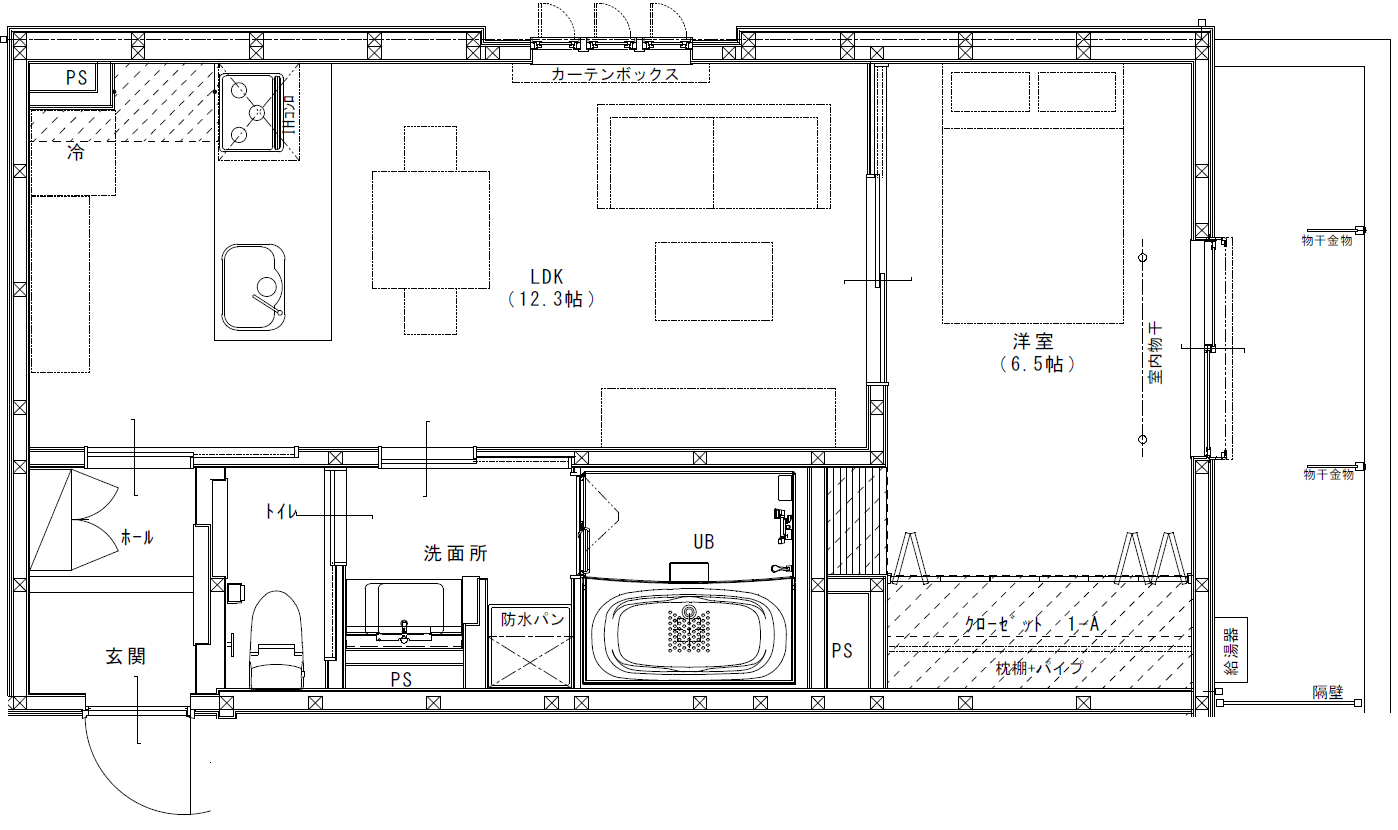
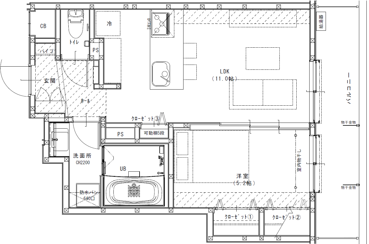
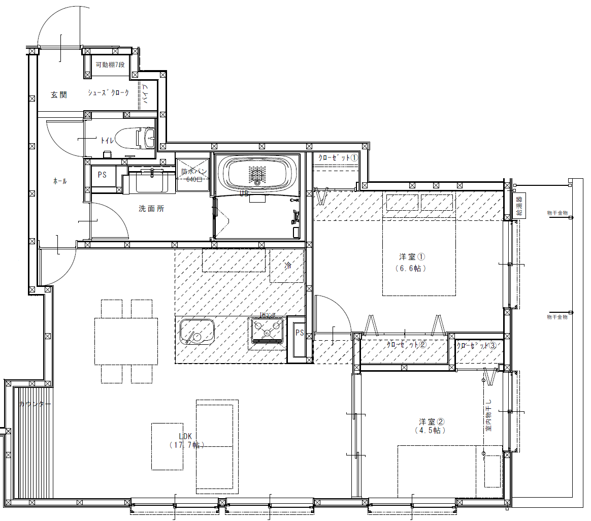
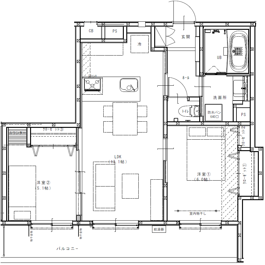
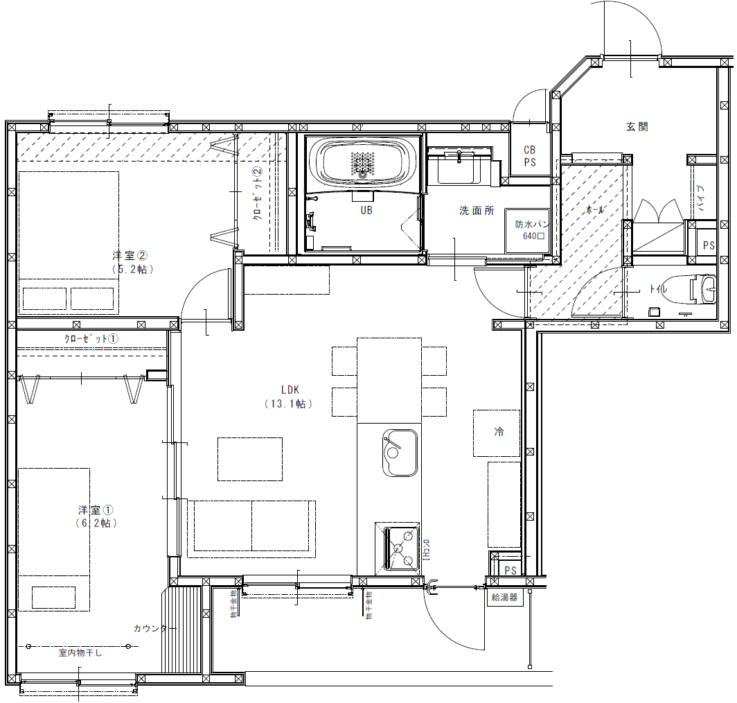
ROOM PLAN
image phoro
多彩なライフスタイルにお答えする、
豊富なプランバリエーション。
”開放感” と ”住む方の目線” にこだわったルームプラン
オーナーファミリーが、『自分達の住みたい』にこだわり 元大手ハウスメーカの建築士、インテリアデザイナーと約2年にわたり検討を重ねたルームプランです。
こだわりの
5つのポイントメリット1 フルフラットの対面キッチンを採用しLDKの開放感を演出。
メリット2 廊下スペースを少なくし、リビングや居室を広く確保。
メリット3 バルコニー側の間口を広くとり、明るく開放感のある住空間。
メリット4 生活動線を意識した入居者目線の間取り。
メリット5 住戸間にクローゼットを設けて防音性の確保 ※D×Etype間除く






